Seja quando o seu expediente termina, para assistir a um bom filme ou para cochilar, você quer ficar nele e aproveitar. Claro que a estrela desses momentos é o sofá, mas decorar salas pequenas com um modelo exige planejamento para que ele caiba sem ser um trambolho no cômodo.
De diferentes cores, modelos e tamanhos, os sofás para salas pequenas são essenciais para além de decorar o ambiente, entregar o conforto que você quer. Por isso, aprender como casar a melhor peça à sua sala, é passo necessário para conseguir ter essas vantagens no décor.
Dois lugares, colonial, de chenille e sem braços. Com tantas opções, leia este post e não se perca na hora de decorar uma sala pequena, se perguntando se o sofá vai caber!
[the_ad_group id=”181″]
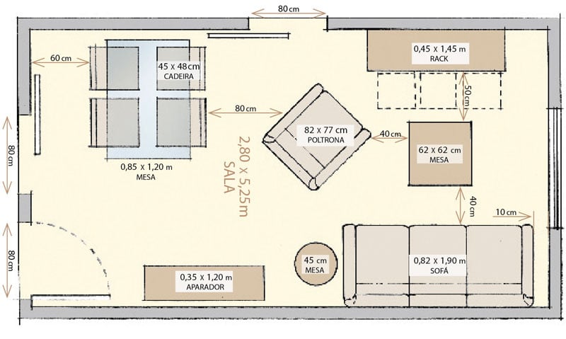
Para decorar salas pequenas, meça todo o ambiente

Créditos: Casa Abril
Antes de colocar o sofá novo na sua sala, a sua primeira tarefa é medir o ambiente em que ele irá ficar. Para isso, use uma trena e anote todas as medidas.
Nessa hora, é bom que você considere o tamanho total da área, e não apenas onde pensa que sofá poderá caber. O motivo é que a sua sala pode passar por uma redecoração completa com a chegada do novo item, então, é bom saber as medidas gerais.
Assim, você vai até descobrir que é possível decorar com um sofá para sala pequena, aproveitando diversas posições da peça no cômodo. Afinal, já saberá das exatas medidas do ambiente.
Repense o layout do cômodo
Créditos: Pinterest
Como já demos a dica no tópico anterior, você poderá remodelar o seu layout da sala com a chegada de um sofá novo para decorá-la. O motivo é que na arquitetura e décor, os espaços são aproveitados aliando além de beleza, funcionalidade e ergonomia.
Ou seja, você pode até achar que colocar um sofá novo na posição de uma peça antiga ou mesmo de outro móvel, terá um bom aproveitamento. Mas, não se engane, o sofá é apenas mais uma peça para decorar salas pequenas, portanto, ele deve dividir o mesmo espaço com a mobília geral, com harmonia.
Decida pela melhor posição do sofá

Créditos: Pinterest
Aqui é a hora que você deve decidir pela melhor posição do sofá. A primeira dica é se basear pelas medidas, já que ele deve caber sem apertos e, principalmente, sem raspar na porta de entrada.
O segundo motivo é que ele deve ficar de preferência, posicionado para um rack ou a TV pendurada na parede, em salas com esses itens. Assim, ele vai servir perfeitamente para as horas de ver um filme ou série, ou mesmo relaxar.
Além desses dois pontos-chaves na hora de escolher a posição do sofá para sala pequena, ele deve ficar em um lugar que não atrapalhe a sua circulação.
Planeje a cor e o estilo

Créditos: Pinterest
Para decorar salas pequenas com um sofá, leve sempre em conta a cor e o modelo. Não há uma ordem de escolha dessas características da peça, mas você pode começar pela cor, já que achar o modelo ideal pode render um trabalhinho. Também, nem sempre um estilo que você curte de sofá, tem disponível na cor que mais combina com o décor.
Escolha o tipo de sofá ideal
Chegou a esperada e agora planejada hora de escolher um sofá para decorar salas pequenas. Então, vamos te guiar com algumas dicas sobre modelos diferentes, para facilitar a sua escolha.
Sofá sem braços

Créditos: Pinterest
Essa opção tem um visual moderno e minimalista, pois elimina os braços de apoio e deixa a peça clean. Esse modelo fica adequado em salas muito pequenas, em que os centímetros que seriam ocupados pelos braços, são ganhos no cômodo.
Também, se você não dá tanta importância a esse detalhe no sofá, pode optar por um modelo que elimina os braços. Mas, saiba que essa parte da peça tem a sua função, já que serve de apoio aos seus braços, ou a sua cabeça, quando você se joga nele para ver filmes ou dormir.
Sofá cama

Créditos: Pinterest
Essa opção é perfeita para quem mora com mais pessoas em uma casa ou apartamento, e não tem quartos sobrando. Existem modelos compactos, feitos especialmente para decorar salas pequenas.
Uma dica aqui é comprar uma peça de alta qualidade, pois com o uso constante da cama embutida, que se abre e fecha, é preciso um sistema resistente para te atender bem por bastante tempo.
Veja vários modelos de sofás cama, na Mobly!
Sofá de 3 lugares

Créditos: Pinterest
O sofá de 3 lugares é indicado para salas que não podem receber mais do que uma peça de mobiliário para se acomodar. Ou seja, ele oferece espaço para uma família pequena, solteiros e casais sem filhos, sem causar aperto.
Olhe os modelos de sofás de 3 lugares, na Mobly!
Sofá de 2 lugares

Créditos: Pinterest
O sofá de 2 lugares é um acerto quando você tem uma sala pequena e quer preencher o mínimo possível do ambiente. Ainda, essa escolha também serve para quando há espaço para outra peça do tipo, mas você quer usar uma poltrona, um pufe ou outro item para sentar-se.
Confira sofás de 2 lugares, na Mobly!
Sofá modular

Créditos: Pinterest
Se a sua praia é redecorar o seu cantinho de tempos em tempos, para dar uma vida nova a ele sempre, vá de sofás modulares. Esses modelos têm ganho cada vez mais fãs, já que permitem o encaixe ou não entre duas ou três peças.
Além do mais, eles podem ser organizados da forma como o ambiente permite, trazendo versatilidade na hora de decorar salas pequenas, e um décor de múltiplas possibilidades.
Sofá de canto

Créditos: Pinterest
Para decorar salas pequenas, o ideal é que essa opção garanta a separação das peças. Já que um sofá inteiriço, em formato de V, para caber em cantos, dificilmente passará em portas estreitas e locais compactos.
Assim, você tem a certeza de que as peças poderão ser transportadas em escadas, elevadores e corredores, e vão entrar em sua casa facilmente.
No mais, opte por modelos que garantam um uso separado mantendo uma estética agradável. Pois, se você quiser mudar o seu décor em pouco tempo, basta usar as peças soltas para repaginar a sala.
Dê uma olhada em vários sofás de canto, na Mobly!
Com esse guia para você escolher o seu sofá sem medo de errar, claro que decorar salas pequenas vai ficar muito mais simples. E o melhor, não precisa se preocupar mais se o sofá vai caber no ambiente arranhar as paredes.
Curtiu o conteúdo? Então, assine a nossa newsletter e receba mais dicas sobre decoração, para garantir beleza e ergonomia no seu décor!
[adsforwp-group id=”3739″]

No Arquiteto de Bolso, acreditamos que um lar bem planejado transforma vidas. Desde 2016, nossa equipe de arquitetos e designers de interiores vem ajudando a transformar mais de 100 mil ambientes em 12 países, oferecendo soluções acessíveis e criativas para todos os tipos de espaços.
Nossa missão é democratizar o acesso à arquitetura e ao design de interiores, e nossa experiência no mercado nos permite criar conteúdos ricos e relevantes para ajudar você a fazer escolhas inteligentes para seu espaço. Com uma plataforma 100% online e focada na praticidade, entendemos as necessidades do público que busca soluções rápidas e eficientes.
Além de ser reconhecida internacionalmente, o Arquiteto de Bolso chamou a atenção de grandes investidores. Em uma rodada de investimento liderada pela Headline e com participação da XP, captamos R$ 15 milhões para expandir nossos serviços e escalar ainda mais nosso impacto. Este investimento valida nossa expertise no setor e nos permite continuar inovando para oferecer o melhor em arquitetura e design de interiores acessíveis.



